8-10 Reserve Court, Altona VIC

FOR SALE & LEASE

PREMIUM INDUSTRIAL WAREHOUSES - ALTONA BUSINESS PARK !!!

Primefield Property Group is glad to present the rare opportunity in Altona Business Park.8 and 10 Reserve Court. An exceptional opportunity awaits in one of Melbourne's most tightly held industrial precincts. Located just off Kororoit Creek Road, this premium development site spans across a generous 2,811 sqm with three state-of-the-art warehouses expected to be completed in 1st quarter of 2026.
With contemporary design, strong environmental credentials, and proximity to major infrastructure, this development is ideal for owner-occupiers or investors seeking long-term value.

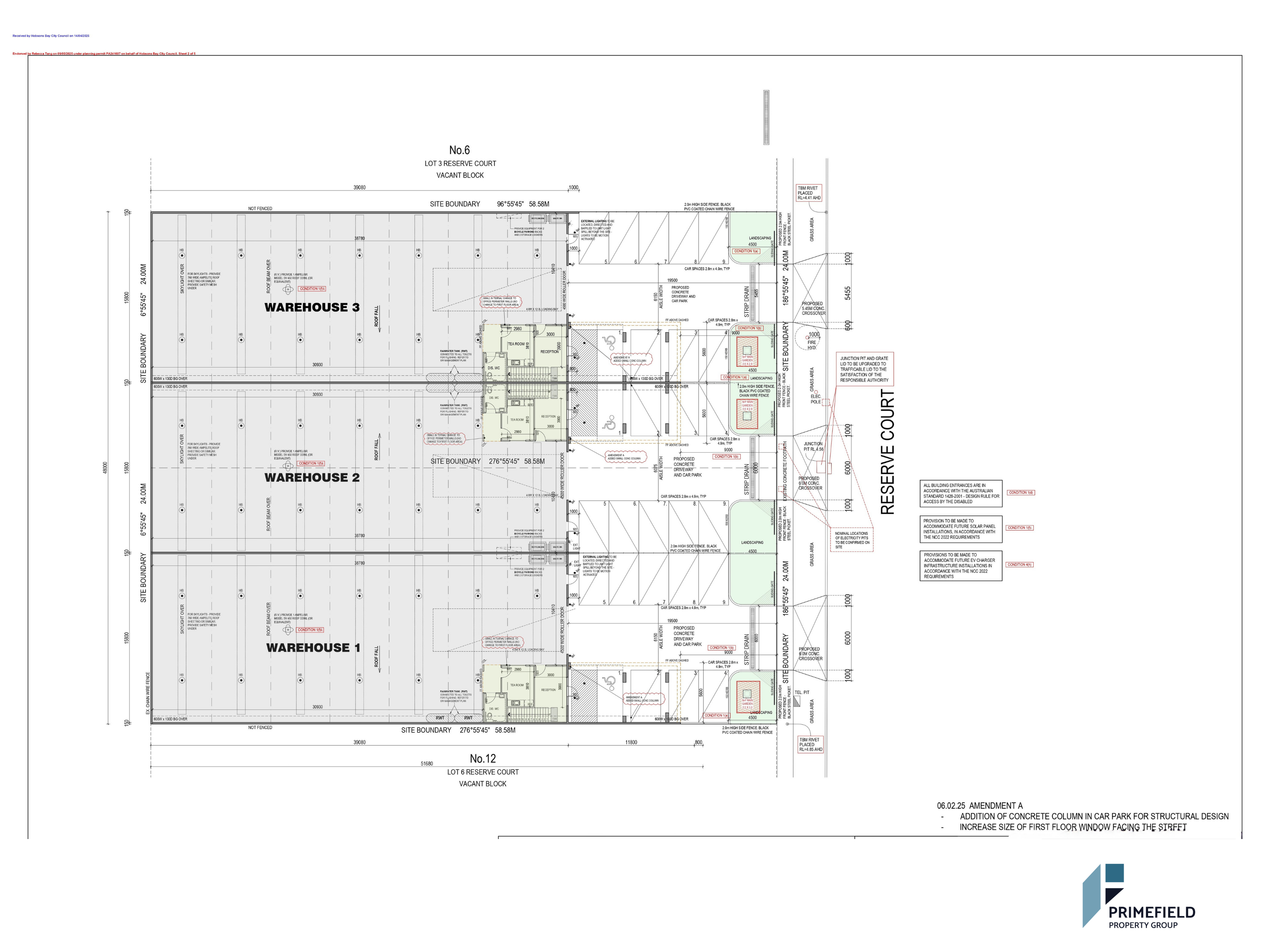
SITE DIMENSIONS & ZONING

â- Total Site Area: 2,811 sqm (Approx.)
â- Zoning: Industrial Zone 1 (IN1Z)
â- Fully serviced: Water, Power, NBN available

WAREHOUSE DETAILS

Warehouse 1
â- Warehouse Area: 582 sqm
â- Ground Floor Office: 44 sqm
â- First Floor Office: 112 sqm
â- Total Building Area: 738 sqm

Warehouse 2
â- Warehouse Area: 580 sqm
â- Ground Floor Office: 44 sqm
â- First Floor Office: 111 sqm
â- Total Building Area: 735 sqm

Warehouse 3
â- Warehouse Area: 582 sqm
â- Ground Floor Office: 44 sqm
â- First Floor Office: 111 sqm
â- Total Building Area: 737 sqm

Each warehouse includes 9 car parks and a dedicated loading bay.

LOCATION HIGHLIGHTS
â- 2 km from Miller's Junction Shopping Precinct
â- 12 km to Melbourne CBD
â- 12 km to Port of Melbourne
â- 32 km to Melbourne Tullamarine Airport
â- Easy access to Princes Freeway, West Gate Freeway, and Western Ring Road â- Located within a heavy vehicle B-Double compliant road network

CONTACT AGENTS

For further details, floorplans, or a private discussion:
â- Deepak Goel - 0412 128 224
â- Karan Kapoor - 0425 822 291

Interested parties are encouraged to conduct their own due diligence. Visit: Consumer Affairs Due Diligence Checklist
Agent Detail
Property Info
Enquire
Property ID30519885
CategoryIndustrial/Warehouse
Property ClassCommercial
Property Statusboth
Land Size937 sqm
Related Properties
Loading...