46-50 Parfitt Road, Wangaratta VIC

FOR SALE

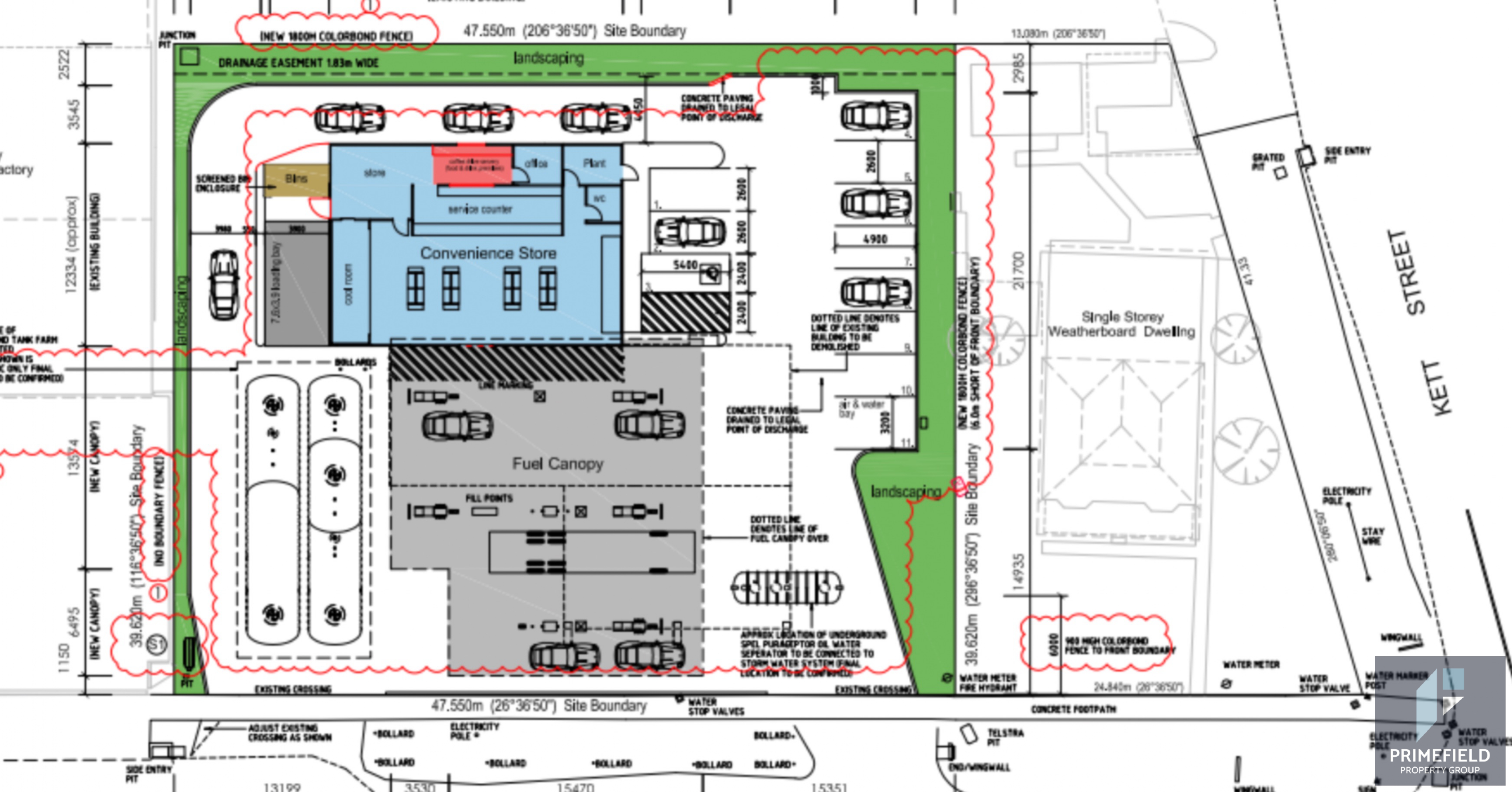
Permit Approved Service Station Site - Wangaratta

Primefield Property Group are pleased to offer for sale 42-50 Parfitt Road Wangaratta VIC 3677.

Magnificent corner parcel with approved plans & permits for service station & Drive thru on a major road Gateway entrance into the booming town
Wangaratta.
First and the only service station which is located on this side of the road, the site is unrivalled and will attract the daily heavy traffic in and out of the town with good access points from both sides of the road.
The subject property comprises a generous corner block with the house next door also house offered along, which make this proposition more attractive.

Key Features :
• Total Land size - 2461 sqm ( Comprising both parcels )
46-50 Parfitt Road Wangaratta VIC - 1768 sqm
42-44 Parfitt Road Wangaratta VIC - 693 sqm
• Mixed use zoning
• Traffic counts Approx. 70,000 Vehicle per week, combined on 900+ Trucks passing the site daily.
• 1.7 Km from Town centre
• Plans & Permit Approved , ready for development

The site benefits from no direct competition and the bend profile of the site makes its visible from far and prominent to the traffic from both directions.
This is extremely rare offering that will be well sought after by the oil companies and developers alike.


Please contact PRIMEFIELD for more Information or to organise an inspection.
Akhil Kansal - 0452 531 547
Karan Kapoor - 0425 822 291

Interested parties should conduct their due diligence prior to making any submissions. Particulars given are for general information only and do not constitute any representation on the part of the vendor or agent.

Due Diligence Checklist -
http://www.consumer.vic.gov.au/duediligencechecklist
Agent Detail
Property Info
Enquire
Property ID19153951
CategoryLand/Development
Property ClassCommercial
Property Statussale
Land Size1768 sqm
Related Properties
Loading...