270 Albert Street, Sebastopol VIC

FOR SALE

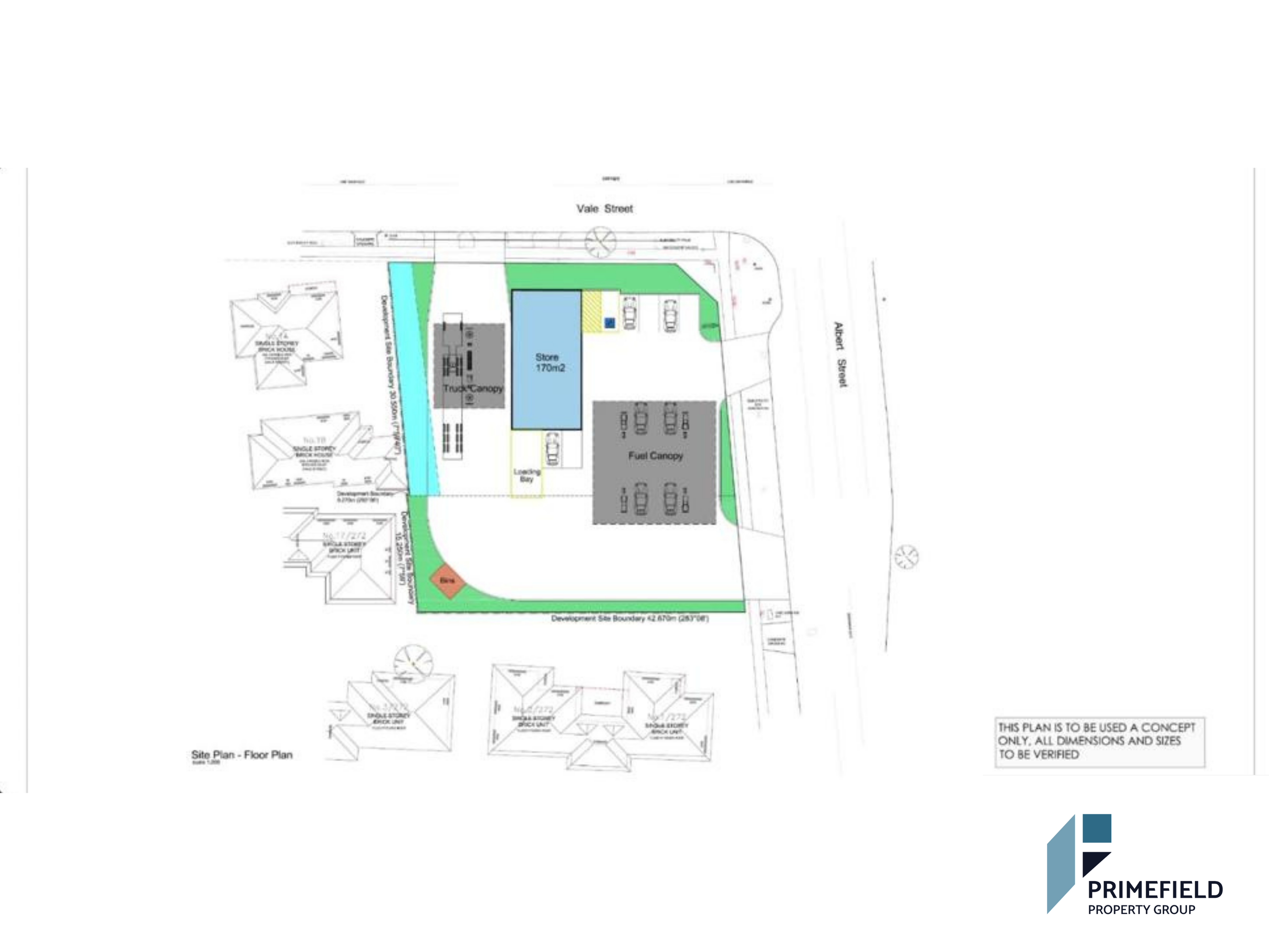
Permit Approved Fuel Site on Main Road

Primefield Property group is delighted to offer for sale these permit approved opportunities at 268-270 Albert Street, Sebastopol. With permits in place for a petrol station, this is a shovel ready site with scope to alter to suit your businesses model.
Located on the corner of Albert and Vale Street sits this massive land holding of approx.1250m2 plus adjoining parcel of 672 sqm Situated within close proximity to Woolworths's shopping centre, wonderful schools, public transport, medical facilities and take away restaurants on an outstanding corner allotment with 2 street frontages this land is ripe for redevelopment.

There is an old federation weatherboard home on the lot that could suit relocation / renovation, but likely to be demolished to make way for a modern redevelopment of the site. The block holds great potential as land is continuing to get harder and harder to find, especially of grand proportions such as this with wonderful dual frontage. This makes for the perfect development site.

268 - 270 ALBERT STREET, SEBASTOPOL
Land size - 1922 sqm
Zoning - GRZ

268 Albert Street Sebastopol VIC 3356 - 1250 SQM
270 Albert Street Sebastopol VIC 3356 - 672 SQM

For further information, please contact Exclusive agents Akhil kansal on 0452 531 547 or karan Kapoor 0425 822 291

Interested parties should conduct their due diligence prior to making any submissions.
Due Diligence Checklist -http://www.consumer.vic.gov.au/duediligencechecklist

Disclaimer: Vendor / Agency or Agent representative will not be held responsible for any errors or misdescriptions whatever that appears. All prospective purchasers / lessees are advised to take their own necessary measurements, permit & council checks, research & their own diligence before entering into any agreements. No part of this work may be copied, reproduced or use of photos copyrights.
Agent Detail
Property Info
Enquire
Property ID29157868
CategoryLand/Development
Property ClassCommercial
Property Statussale
Land Size1922 sqm
Related Properties
Loading...